恵生院

寺院のご案内

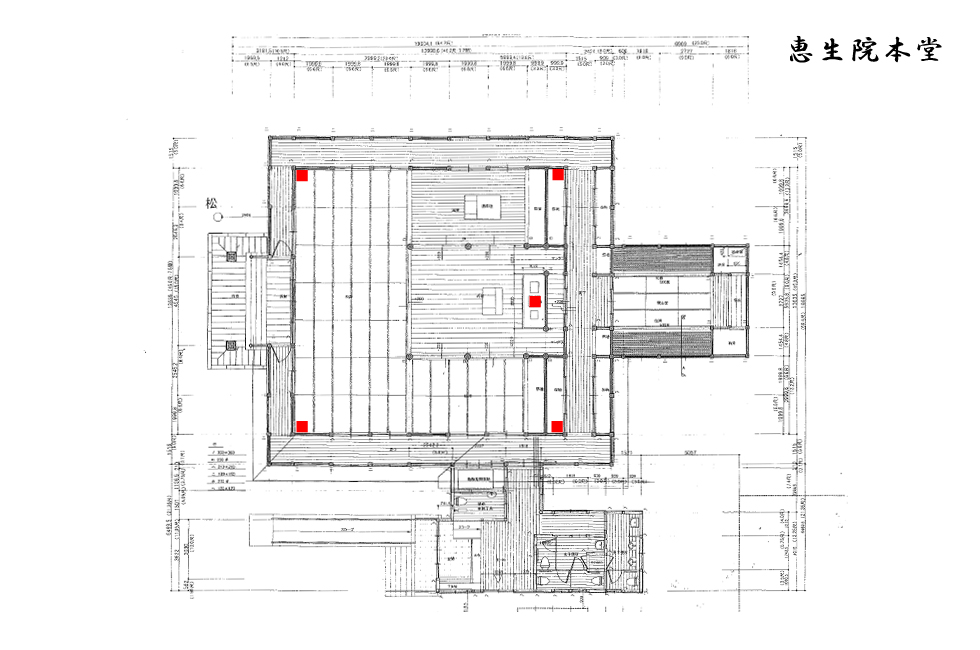
本堂建て替えのお知らせ

恵生院

恵生院では平成二十九年 七月に本堂の建て替えが完了いたしました。

恵生院本堂建て替え図面